
U Muzeju Sv. Ivan Zelina, 16. 11. 2018 održana je završna prezentacija projekta Obnova srednjovjekovnog Zelingrada, faza izrade projektne dokumentacije za obnovu. Projekt je proveden uz potporu EU sredstava, a temeljem ugovora potpisanog između Ministarstva regionalnog razvoja i fondova EU. Vrijednost projekta iznosi 2.229.810,72 kune.
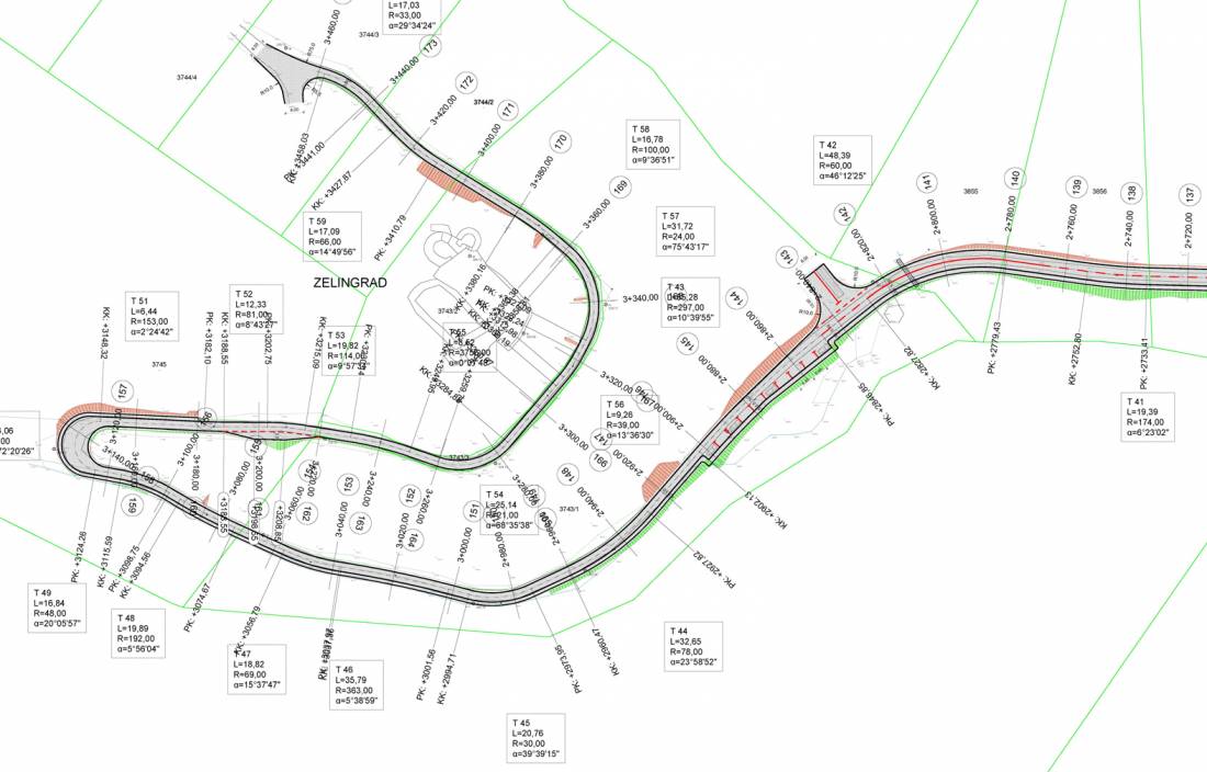
Provedbom projekta izrađena je projektna dokumentacija rekonstrukcije srednjovjekovnog Zelingrada i izgradnju podgrađa koje se nalazi ispod njega, te pristupne ceste od naselja Biškupec prema Zelingradu kao i izgradnju turističko – rekreativne šetnice uz cestu u dužini od 3,5 km.
Sada slijedi ishođenje građevinskih dozvola, te apliciranje svakog dijela projekta na odgovarajuće natječaje za sufinanciranje iz EU sredstava.
Projekt predviđa obnovu Zelingrada kao naše kulturne baštine u cilju jačanja turističke i druge ponude Grada Sv. Ivana Zeline, odnosno poboljšanje konkurentnosti našeg Grada na turističkom tržištu. Obnovljeni Zelingrad predstavljat će značajnu turističku atrakciju uz koju će se vezati ostala ponuda: Zelinska vinska cesta, biciklističke, konjičke, planinarske i ostale rekreacijske staze i putevi, Ekološka poučna staza, te Marijanski putevi. Ovim projektom se Zelingrad planira obnoviti u skladu sa pravilima konzervatorske struke u potpunosti, kako bi bio funkcionalan za niz sadržaja. U utvrdi se planira slijedeće sadržaje: izložbeni muzejski prostor, multifunkcionalna dvorana za koncerte, predavanja, te razna druga okupljanja, te multifunkcionalna dvorana. Grad dobiva i tzv. podgrađe s više sadržaja, odnosno slikovito srednjevjekovno selo s ponudom prilagođenom većem broju turista.
Vrijednost izgradnje i opremanja palasa Zelingrada procijenjena je na 32.000.000,00 kuna.
O projektu je govorio ravnatelj Muzeja Sveti Ivan Zelina Mladen Houška, a pridružio mu se i direktor projekta Zdravko Jurčec. Lijepim riječima pridružila se viša kustocica Muzeja Sveti Ivan Zelina Romana Mačković, a projekt je pohvalio pročelnik konzervatorskog odjela Amelio Vekić.
Svečanom predstavljanju projekta prisustvovali su u ime Grada Svetog Ivana Zeline gradonačelnik Hrvoje Košćec, predsjednik Gradskog vijeća Grada Svetog Ivana Zeline Darko Bistrički, direktorica Turističke zajednice grada Svetog Ivana Zeline Marinka Zubčić, glavni projektant Darko Kolarić, vodeći stručnjak za srednjovjekovnu kulturu dr. Zorislav Horvat i drugi uzvanici. 23. ožujka 2017. g. potpisan je Ugovor o obnovi srednjovjekovnog Zelingrada – faza A, izrada projektne dokumentacije između Ministarstva regionalnog razvoja i EU fondova i Muzeja Sv. Ivan Zelina.
Ukupna vrijednost projekta iznosi 2.229.810,72 kune, od čega se iz EU sredstava osigurava 1.795.879,82 kune.
Projektni elementi koje je Muzej bio obavezan izvršiti prema ugovoru su slijedeći:
- Arheološka istraživanja Zelingrada
- Izrada projektne dokumentacije rekonstrukcije Zelingrada
- Digitalno snimanje i izrada snimke postojećeg stanja
- Parcelacijski i geodetski elaborat zemljišnih čestica
- Izrada konzervatorske studije
- Priprema programa i izrada studijske dokumentacije ( integrirani program, CBA, javna nabava, projektna prijava za fazu izgradnje)
- Izrada projektne dokumentacije za izgradnju prometnice prema Zelingradu
Svi projektni elementi su izvršeni u skladu sa Ugovorom, te je Konačni obračun projekta dostavljen SAFU-u u roku ( 31.10.2018.)
Prema konačnom obračunu ukupna vrijednost radova iznosi 1.917.382,47 kuna.
Rad na Projektu je bio vrlo kompleksan, budući da Muzej raspolaže sa vrlo ograničenim ljudskim resursima, a samim projektom nam nije bilo moguće sufinancirati administrativno – tehničku podršku. Najveći problemi su nastali u postupku javne nabave zbog nepostojanja kvalificirane podrške, uslijed čega je Muzej bio prisiljen zatražiti produljenje roka za izvršenje ugovornih obaveza.
Većina projektnih elemenata proizlazi logičkim slijedom, jedna iz drugih, tako da su do kraja ugovorenog roka izrađivani – projektna dokumentacija obnove ( Glavni i izvedbeni projekti), usklađivanje sa CBA, te izrada projektne prijave Projekta obnove na Fazu 2., tj. prijava na natječaj za samo građenje.
NAGLASCI IZ CBA:
- Zelingrad sada posjećuje prosječno godišnje 1.500 posjetitelja, a njegovom obnovom i zahvaljujući novim sadržajima posjećivalo bi ga godišnje 28.000 posjetitelja, što čini povećanje od 1800 posto
- Godišnji prihod Zelingrada ( komercijalne i ostale djelatnosti) iznosio bi 1.696.550,00 kuna
- Ostvarilo bi se novo zapošljavanje: 5 osoba u Palasu, te više osoba u Podgrađu, kao direktno zapošljavanje, te indirektno zapošljavanje u sekundarnim djelatnostima 10 do 15 osoba.
- Ulaganja u projekt obnove Palasa procjenjuju se na 26.000.000,00 kuna, što zajedno sa opremanjem te operativnim godišnjim troškovima osoblja i amortizacije, kao i uloženim obrtnim sredstvima iznosi investiciju od 31.435.858 kuna.
ZAKLJUČAK CBA
Projekt se ocjenjuje izvodljivim, te je utvrđena opravdanost njegova sufinanciranja europskim fondovima.
PROMETNICA BIŠKUPEC – ZELINGRAD DUŽINE 3,5 KM
Rekapitulacija izgradnje:
Prepisati zadnju stranicu troškovnika 13.975.312,50 kn.
Dosadašnjim radom na projektu obnove Zelingrada i njegovim stavljanjem u funkciju turizma, razjasnile su se slijedeće cjeline koje treba rješavati:
- Obnova palasa Zelingrada- dokumentacija je spremna za građevinsku dozvolu, te apliciranje na odgovarajuće EU fondove, te početak izgradnje
- Podgrađe Zelingrada – budući da se radi o zemljišnim česticama koje ne ulaze u građevinsku zonu, potrebno je provesti postupak izmjena i dopuna prostornih planova, sa formiranjem turističke zone
- Pristupna cesta – predstavlja samostalnu infrastrukturnu investiciju sa gotovom projektnom dokumentacijom, te je treba samostalno prijaviti na sufinanciranje iz odgovarajućih fondova. Ovdje je poželjno cestu produljiti, te je povezati sa Marijom Bistricom.